Property #TSR1231C
Property #TSR1231C - 2
Property #TSR1231C - 3
35 foto's

Property #TSR1231C

Jávea - Xàbia, Alicante

€ 850.000
3 Slaapkamers
2 Badkamers
152 m² Woonoppervlak
2600 m² Perceelgrootte
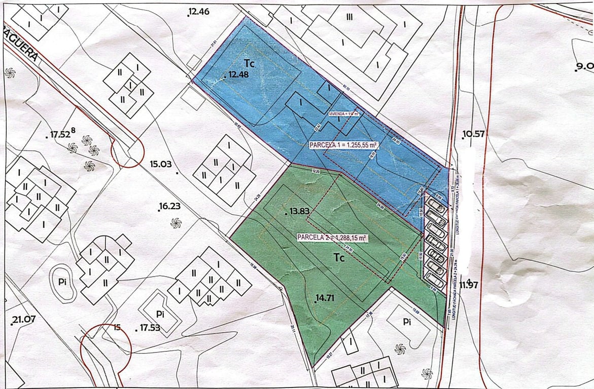
Perceel van 2.600 m2 met huis en de mogelijkheid om te splitsen in twee bouwpercelen Dit perceel ligt op korte afstand van het zandstrand van Jávea en biedt een uitstekende investeringsmogelijkheid. Het perceel kan perfect worden verdeeld in twee onafhankelijke bouwpercelen van ongeveer 1.300 m2 elk, geschikt voor het bouwen van twee luxe villa's. Momenteel bevat het perceel een gelijkvloerse villa met een bebouwde oppervlakte van 152 m². De woning heeft een woonkamer met open keuken, een tweede woonkamer-eetkamer met gesloten keuken, drie slaapkamers, twee badkamers en een patio met een berging. Dit perceel ligt op korte afstand van het zandstrand van Jávea en heeft een uitstekende ligging dicht bij alle voorzieningen. Supermarkten, restaurants, dokterspraktijken, sportfaciliteiten en andere dagelijkse benodigdheden bevinden zich op loopafstand. Deze locatie combineert privacy met het comfort van een centrale ligging.

Kenmerken

Woningtype villa
Woonoppervlak 152 m²
Perceelgrootte 2600 m²
Locatie Jávea - Xàbia
Voorzieningen features - storage room

Locatie

* Locatie is bij benadering weergegeven

Geïnteresseerd in deze woning?

Neem contact met ons op voor meer informatie of om een bezichtiging in te plannen.

Referentie: TSR1231C

Gerelateerde woningen